House - Decisions - Construction

Looking for a house in Austin....

After much research we found that we were very unlikely to find the size house we wanted, with the size yard we wanted, in the location we wanted at the price we were willing to pay. We decided to revisit the idea of new construction a bit farther south and west of Austin.

We found a sprawling development called Belterra. I'm really not a fan of "master planned" communities; but this one isn't too bad. There are several different builders so the houses don't all look alike and there is lots of community open space for the kids to play in. They have their own play ground and pool and there are lots of kids in the neighborhood. Jeff's commute will be about 20 minutes and I'll be about 10 minutes away from shopping centers and a new mall. [ Area Map ]

We picked a corner lot in the Aspen Hills section of Belterra. It's right across from the green belt and we should be able to see the pond from our front porch.

Greenbelt and pond as seen from the lot

Our address will be 240 Granite Lane [ Street-level Map ]

Highland Homes is building our house and they've been wonderful about customizing things to meet our needs. We started with their plan 981 elevation B...

981 elevation B
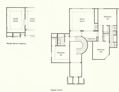
981B - first floor 981B - second floor

We added a second master bedroom upstairs in place of the media room and made several orither minor changes like moving the fire place into the corner, reducing the size of the closet in the downstairs master to make a nook for an office area, and widening several doorways.

House - Decisions - Construction